PL 2a dom na zgłoszenie 70 m Polski ład
Toruń / Bielawy-Grębocin Pokaż na mapie ›
Odświeżone: Niedziela, 23 Listopad, 2025 16:12
Szczegóły ogłoszenia
- Kategoria: Usługi / Usługi architektoniczne i geodezyjne
Opis oferty
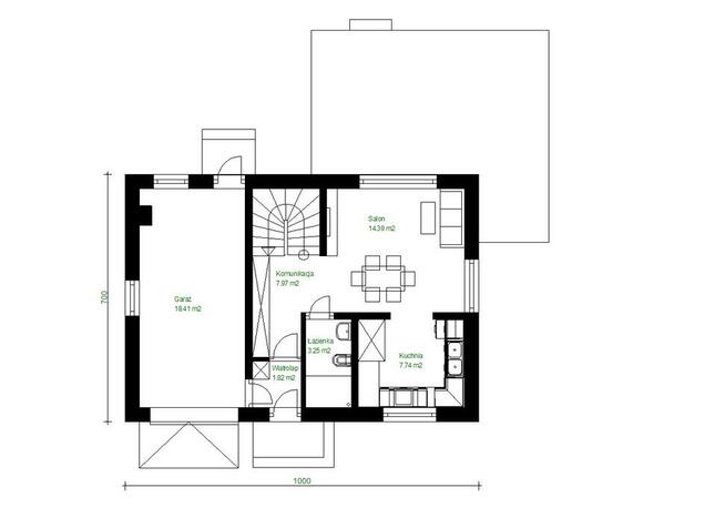
Prezentowany projekt PL2a w wyjątkowej odsłonie w stylu nowoczesnej stodoły. To dom o prostej bryle z dwuspadowym dachem.Sprzedaje projekt domu na zgłoszenie który nie wymaga Pozwolenia na budowę
Technologia budowy tradycyjna murowana
Komplet projektu – 3 egzemplarze – potrzebne do zgłoszenia.
Zgłaszamy jako budynek mieszkalny jednorodzinny
Istnieje możliwość zgłoszenia budynku jako rekreacyjny. Oferta dostępna mailowo.
Istnieje możliwość przeprojektowania na inną technologię np. drewnianą (oferta dostępna mailowo).
Istnieje możliwość przeprojektowania budynku pod względem gabarytów (szerokości, długości) i/lub kąta nachylenia dachu itd. (oferta dostępna mailowo).
Projekt zawiera:
1) Rzut ławy fundamentowej
2) Rzut muru fundamentowego
3) Rzut parteru
4) Rzut poddasza
5) Przekrój
6) Więźbę dachową
7) Połać dachową
8) Elewację frontową
9) Elewację boczną nr 1
10) Elewację tylną
11) Elewację boczną nr 2
12) Opis techniczny
W projekcie została dołączona zgoda na zmiany, która nie wymaga już kontaktu z nami. Ta domyślna zgoda dopuszcza wykonanie zmian w zakresie:
- zmiany otworów okiennych i drzwiowych oraz okien połaciowych wg potrzeb Inwestora (likwidacja okien i drzwi, zmiana lokalizacji, powiększenie, pomniejszenie)
- zamiany materiałów i rodzajów elementów konstrukcyjnych przy zachowaniu odpowiednich parametrów technicznych (np. zamiana technologii wykonania stropu, ścian itp.)
- zmiany rodzaju pokrycia dachowego z uwzględnieniem zaprojektowanych spadków i ciężaru pokrycia (zamiana np dachówki ceramicznej na betonową, blachę lub gont bitumiczny)
- drobnych zmian elementów niekonstrukcyjnych układu wewnętrznego (np. przesunięcie drzwi, zmiana układu ścianek działowych)
- sposobu ogrzewania budynku
- zmiana funkcji pomieszczeń
- zmiana gabarytów tarasów i schodów zewnętrznych
Prosimy wpisać dane inwestora w zamówieniu ponieważ projekty są imienne na inwestora.
Więcej na www.domnazgloszenie.pl
Sprawdź zainteresowanie tym ogłoszeniem
Wyświetlenia
Data dodania
Ostatnio widziany
Obserwujących
Wysłane zapytania
Odsłony telefonu
Dawid
Konto prywatne
Na Lento.pl od 06 lis 2019
Strona użytkownika
- Wypromuj ogłoszenie
- Zgłoś naruszenie
- Drukuj ulotkę
- Edytuj/usuń ogłoszenie
- Udostępnij ogłoszenie
- Dodaj na Facebook









