Lokal użytkowy - biurowy/usługowy Szosa Chełmińska
Toruń / Wrzosy Pokaż na mapie ›
Odświeżone: Poniedziałek, 16 Marzec, 2026 08:30
3 500 zł
Szczegóły ogłoszenia
- Kategoria: Biura i lokale / Do wynajęcia
- Przeznaczenie:Biurowe
- Powierzchnia:85 m2
- Sprzedaż:Pośrednik
- Cena: 3 500 zł
Opis oferty
Tylko u nasZapraszam do zapoznania się z ofertą wynajmu lokalu użytkowego na Szosie Chełmińskiej.
- świetna lokalizacja z ruchem pieszych i samochodowym;
- dobrze skomunikowane - obok budynku przystanek autobusowy.
Kondygnacja: 1 piętro.
Przeznaczenie: biurowe, usługowe.
Parking: parking obok budynku.
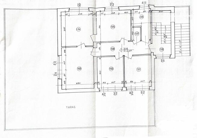
Lokal o powierzchni 85 mkw, w skład którego wchodzą 4 pomieszczenie biurowe, pomieszczenie socjalne, wc i obszerny korytarz. Poglądowy rzut wśród zdjęć.
Największe pomieszczenie ma wyjście na bardzo przestronny, narożny taras. Dostęp 24h.
Czynsz najmu 3500 zł netto/msc + opłaty za media (prąd, woda, ogrzewanie gazowe).
Kaucja jednomiesięczna.
Dostępność: od zaraz.
Polecam i zapraszam na prezentację,
Milena Gręźlik, 799 - pokaż numer telefonu -
Opis oferty sporządzony jest na podstawie oględzin nieruchomości oraz informacji uzyskanych od właściciela. Może podlegać aktualizacji i nie stanowi oferty handlowej w rozumieniu Kodeksu Cywilnego. Usługa pośrednictwa jest usługą płatną w momencie wynajmu nieruchomości. Prezentacje są bezpłatne.
Sprawdź zainteresowanie tym ogłoszeniem
Wyświetlenia
Data dodania
Ostatnio widziany
Obserwujących
Wysłane zapytania
Odsłony telefonu
Powiadom o podobnych ogłoszeniach
Lokalizacja: Toruń
Kategoria: Nieruchomości » Biura i lokale » Do wynajęcia
Cena: od 3000 zł do 4000 zł Powierzchnia : od 72 m2 do 98 m2
Chcę otrzymywać powiadomienia o nowych ofertach
Milena Grupa Magic
Konto firmowe
Na Lento.pl od 11 mar 2021
Odpowiada szybko
Strona użytkownika
- Wypromuj ogłoszenie
- Zgłoś naruszenie
- Drukuj ulotkę
- Edytuj/usuń ogłoszenie
- Udostępnij ogłoszenie
- Dodaj na Facebook























